在城市教育用地紧张和校园建设日益高密化的双重压力之下,如何通过既有学校的改扩建,破解现状困局,设计出能够满足现代教育需求、提升空间品质,又能积极回应城市环境,重塑场地、自然、人之间链接的教育空间?梅山中学扩建综合楼项目正是在此现实背景下,以先进设计理念交出的优秀答卷。
梅山中学位于梅林街道下梅林片区,校园三面环山,拥绿叠翠。西南侧为梅山小学,周边有成熟小区梅林一村和梅山苑。占地面积约3.3万㎡,现状校舍面积约2.1万㎡,包括教学楼、综合楼、教工宿舍、教工之家。扩建拆除教工之家,操场改建,由原有的36班扩为48班,提供学位600个,新建综合楼面积约4.1万㎡,在这样用地局促、高容积率高密度的校园空间中,设计师打破传统教室的框架,将教学延伸到校园内的各类场所,将非正式教学空间以垂直叠加模式来与传统教学空间相结合,以求在最有限的条件中获得更有机、更活力、更优质的教学空间。

从梅林山鸟瞰校园
01 PART 链接自然、建筑与人的“立体游廊”
梅山中学扩建综合楼,以“立体游廊”为概念,由地面到屋顶打造一个多层、多维、多尺度的“立体游廊”,使其成为承载课外教学、学生互动交流,将各功能完整串联起来的垂直校园空间。实现原有校舍和扩建综合楼、自然和建筑、运动和教学的有机链接。

从梅林山眺望梅山中学扩建综合楼

运动和教学有机链接

立体游廊
02 PART 保留校园骨架,顺应地形延伸
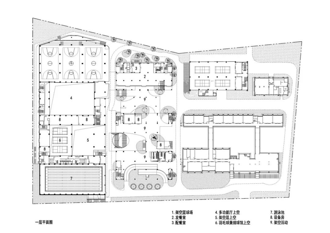
校园依山而建,环境优美,景观资源优越。保留校园规划结构,扩建综合楼延续原校园肌理,功能对位。底层三栋一字型分别顺延原教学楼功能,整合专业教室、普通教室、图书馆、餐厅等功能,并通过连廊与原教学楼无缝连接。顶层E字型新建特色教学,新旧碰撞。负一层设置地下车库。利用场地高差,操场下集中运动区,增加三个架空篮球场,一个游泳馆,一个羽毛球馆,一个综合馆。

扩建前后对比

保留原校园规划结构,扩建延续校园肌理
03 PART 突破竖向隔阂,打破内外边界
顺应地形,优化校园整体空间格局,营造入口到山体的空间序列。结合操场的“Z”字形地面犹如绿毯将综合楼与原有校园建筑链接起来,激发和承载多样化的社交交往和非正式教学活动,鼓励同学们在漫步、玩耍、相遇中学习成长。

校园入口到山体的空间序列

中庭连接各层教室(左)台阶和平台连接庭院、操场与教学楼(右)
室内设计打破室内外的教学边界,不仅注重内部固定教学单元的复合性、灵活性与可变性,同时将教学空间延展到半室外区域,无处不课堂,处处可交流。外走廊拓宽结合教室入口形成座椅休息区,图书馆阅读空间拓展到走廊及阳台,连廊布置展墙及移动书架沙发等,提供展示交流、小型讨论及流动阅读的场所。

架空和悬挑提供适应南方气候的活动空间

连廊及平台拓展活动与交流
室外场所的塑造,调研中学生行为模式特点,外部借景将大自然引人小场地,内部拟态让绿色串联室内户外。提取梅林山为自然绿丘,结合多样性活动,形成自然校园中的“学之丘”。由人口到屋顶打造风格各异的室外游园,微地形与植物围合成大小不一的场地,便于不同规模的学生团体活动。

风格各异的室外游园

外部借景梅林山引人场地 (左)内部拟态绿色串联室内户外(右)

形体切分回应原有校舍,创造架空、露台与山景对话
梅山中学扩建综合楼以“立体游廊”为核心设计手法,将校园空间向空中立体延展,实现了非正式教学空间的创新实践。通过垂直维度的空间重构,设计团队回应了高密度城市环境下教育建筑的发展困境,真正践行了“优质均衡、素养育人、深度融合、可持续发展”的现代教育理念,为城市更新语境下的校园建设提供了可资借鉴的范本。
「设计师创作手记」
毛冬 AUBE欧博设计建筑设计中心高级总监
对项目的感觉是从第一次基地调研开始,梅山中学的场地顺着山体起伏,一路攀升直到操场,可以看到梅林山的山景。因此在改造校园及设计新建综合楼的时候,我们尊重现有学校的空间逻辑,改善学校现状问题解决需求外,力图强化不断攀升的登山体验,并且营造更多与山有关的场景。希望孩子们在紧张的学习之外,片刻闲暇,抬头看到山林、日落,为三年的中学生活,留下梅山中学特有的记忆。
项目由投标中标到落地建成是一个艰辛的过程。多轮的设计修改优化,满足各方使用需求。再到现场建设,根据施工情况迅速做出反应,指导施工顺利推进。方案设计+施工图设计+施工现场控制全过程一体化,建筑+室内+景观+幕墙+泛光+标识全专业一体化,通过不断的实践,让纸上建筑变成同等优秀的现实作品才是作为职业建筑师的必经之路。
技术图纸

一层平面图

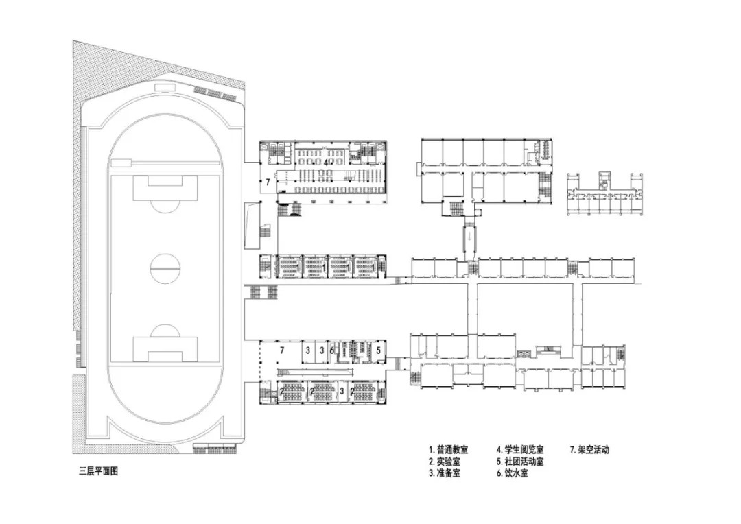
三层平面图

五层平面图

剖面图

幕墙局部大样图
项目信息
项目地点:广东省深圳市
客户:深圳市福田区建筑工务署
深圳市天健地产集团有限公司
设计范围:建筑、室内、景观、设计总承包
设计类别:改扩建
主要功能:初中
用地面积:33 300㎡
总建筑面积:41 200㎡
设计/竣工年份:2020年/2025年
AUBE欧博设计团队:
项目负责人:杨光伟
主创设计师:毛冬
建筑&室内设计:毛冬、涂靖、王楚、张栋、黄子文、李爽、陈疏桐、李木森、王奇、周林鹏、李伟康、黄新方、罗凡、王石、常冬冬
景观设计:祝捷、冯明、 吴吟、叶澜、张昌蓉、聂云飞、赖姗、李炼恒、彭晓彬、陈健玲
结构设计:骆年红
机电设计:王硕、张浩、聂育华
幕墙配合单位:深圳市朋格幕墙设计咨询有限公司
泛光配合单位:深圳陆禾灯光设计顾问有限公司
室内施工图单位:深圳文业装饰设计工程有限公司
摄影:直角建筑摄影