
△ 项目概览 ©直角建筑摄影
一次主动的“城市修复”实践
城市的记忆如同地质层,在时间中沉积、叠加。
项目位于深圳市福田区安托山片区,与安托山自然艺术公园等公共艺术设施串联。这里曾为城市扩张提供了基石,其开采后形成的阶梯状地貌,成为一道刻入城市肌理的工业“断层”。

△ 项目整体鸟瞰图 ©直角建筑摄影
面对周边高密度社区与公共文化服务的空白,设计旨在探索一种回应高密度用地的“城市修复”实践策略,将原先被割裂的城市肌理与公共文化生活进行修复链接,重新激活这片土地的潜能。
我们希望通过在这处用地极度有限的“断层”上植入一个能缝合社群、激活区域的精神性场所,使之不仅能填补区域大型文化设施的缺失,更能构筑一个文化与生态交融的区级垂直文化聚落,成为持续产生公共能量的艺术山林。


△ 实体模型图 ©HHD深圳华汇设计

△ 艺术与生态交融的立体文化聚落 ©直角建筑摄影
艺术山林:轻与重的自然叙事
设计的叙事始于“艺术山林”这一核心概念,通过对开采断崖的坚实层理感与垂直切削的力量感的抽象转译,呼应片区所期待的文化开放与未来意象,将建筑体量转化为对自然地貌的物理重构。裙房如“山”,以厚重层叠的姿态锚固历史;塔楼似“林”,以轻盈挺拔的形体指向未来。这场“轻”与“重”的对话,既是形式与理念的二元起点,也构筑出一幅建筑与自然相互交融的精神图景。

△ 概念草图 ©肖诚

△ 生成概念图解 ©HHD深圳华汇设计
裙房以横向延展、折面交错的体量,塑造出如山体基座般的厚重姿态。银灰色穿孔铝板表皮,以不同的肌理拼贴回应了山体开采断崖的层理感与切削的力量感,锚固了建筑的历史维度,凸显出作为文化容器的独特气质。



△山体基座般的裙房 ©直角建筑摄影
塔楼则通过强化竖向线条与通透的玻璃幕墙,呈现如林木般向上生长的轻盈姿态。它仿佛从“山体”中自然生长而出,不仅象征着面向未来的开放姿态,更在视觉上强化了建筑向天空延伸的动势,与周边自然绿意,天空与城市肌理相互映照。

△ “林”:轻盈的生长与开放 ©直角建筑摄影
“山”与“林”的共生,在都市高密环境中完成了一次空间重塑,营造出一处可步入、可感知的“艺术山林”,让人与自然、历史与未来在此相遇、对话。


△轻与重的对话 ©直角建筑摄影

△山林共生 ©在场造象工作室
一场从地面到天空的公共艺术漫游
我们认为,当代大型文化建筑的核心价值,在于其激发城市公共生活的能力。因此,设计打破了传统场馆的封闭范式,构建了一个多层次、全天候、可自由探索的立体公共空间系统,引导市民完成一场从城市地面到空中绿洲的“艺术漫游”。

△立体公共空间轴测图 © HHD深圳华汇设计

△从城市地面到空中绿洲的“艺术漫游”©在场造象工作室

△从城市地面到空中绿洲的“艺术漫游”©直角建筑摄影
在地面与地下一层我们创造了南北贯穿的架空“灰空间”,为深圳的气候提供了遮阳避雨的休憩场所。同时,面向街道的开放界面打破了文化建筑的封闭,构建社区生活的核心舞台。这里没有围墙与闸机,市民可以自由穿行、小憩、观看街头表演,使文化建筑的边界彻底消融,成为社区客厅的自然延伸。



△向城市完全开放的架空层空间 ©在场造象工作室

△建筑开放界面与城市友好共融 ©直角建筑摄影
在二层及以上,我们塑造了一个贯通多层的通高公共大厅。这里超越了单一的交通功能,成为建筑内部的核心活力场与视觉焦点。

△建筑内部的核心活力场 ©直角建筑摄影
公共大厅直接衔接音乐厅、大剧院及黑匣子剧场,使不同场馆的观众在幕间休息时得以自然汇聚、交流,共享同一片充满艺术氛围的公共领域。交错、盘旋而上的楼梯不仅高效地串联起各层平台,其本身也成为观众驻足、观展、社交的场所。随着人的移动,空间景象持续变换,仿佛一场关于“攀登”与“发现”的静态演出。

△通高公共大厅与楼梯 ©直角建筑摄影


△通高公共大厅与楼梯 ©在场造象工作室
这处“空中层”因而成为一个真正意义上的“盘旋的相遇”之所——既是路径,也是目的地,在垂直维度上持续激活着文化与社群的对话。



△交错的楼梯本身也成为观众驻足、观展、社交的场所 ©在场造象工作室
屋顶层的空中花园,是整场“从地面到天空”公共漫游的最终抵达与升华。花园巧妙延续了建筑体量的转折形态,通过覆土造坡与地形塑造,将原本的建筑屋面转化为连绵起伏的草坡与台地,形成一系列尺度各异、开放而自由的空中绿洲。在这里,人们可以漫步、驻足、远眺,在自然绿意与城市天际之间,实现建筑、自然与人的和谐共融。


△空中的城市绿洲 ©直角建筑摄影
一条如艺术装置般蜿蜒跃动的橙色休闲路径串联起不同标高的景观节点与休憩平台。它不仅是链接不同标高场所的活力飘带,从城市视角中也成为安托山片区内一个充满活力和公众辨识度的视觉地标。




△城市视角下的“山顶花园” ©在场造象工作室
于限制中破题——高密度下的垂直文化聚落
项目的核心挑战是高度紧张用地与高效率公共空间的博弈与整合。在约1公顷的用地内,需容纳超10万平方米的建筑体量。我们通过垂直维度的系统性整合,将大剧院、音乐厅、黑匣子剧场、图书馆、展览厅等功能立体叠合,形成高效复合的垂直文化聚落。

△立体叠合的功能分析图 ©HHD深圳华汇设计
1000座剧院、500座音乐厅与4个灵活使用的黑匣子剧场不仅填补了区级文化设施的空缺,更能为本土实验戏剧、先锋音乐、小型发布会提供孵化土壤,构建一个持续生长的“立体文化生态系统”。

△音乐厅内景 ©直角建筑摄影

△500座音乐厅排练现场 ©在场造象工作室

△1000座剧院内景 ©直角建筑摄影

△黑匣子剧场内景 ©直角建筑摄影

△黑匣子剧场演出现场 ©在场造象工作室

△垂直聚落剖透示意图 ©HHD深圳华汇设计
除了宏大的观演空间,项目内还植入了可承载持续性文化艺术活动的展览馆与图书馆。这些空间并非附属,而是构成“立体文化生态系统”的公共节点。
展览馆位于裙房六、七层,采用了开放式布局,展览区域局部通高两层,为大型装置艺术、综合媒介展览提供灵活性的容器。

△展览厅内景 ©直角建筑摄影

△展览厅内景 ©在场造象工作室
图书馆位于建筑的八层,是一个相对静谧的知识绿洲。空间的核心是构筑了一处大台阶复合阅览区。台阶本身既是交通,也是可随意坐卧的阅读席,打破了传统图书馆固定座位的拘束感,鼓励一种更为轻松、自由的阅读与交流方式。


△图书馆的台阶内景 ©直角建筑摄影
共生的篇章:融合与独立的九班幼儿园
作为整体文化集群的一部分,九班幼儿园的设计旨在实现 “融合与独立”的平衡。面对狭小用地与严格的日照规范,幼儿园与文化中心通过相互倾斜的屋面轮廓和相似的水平延展形态,维系城市界面的完整性与整体性。不仅塑造了和谐的整体天际线,也缓解了二者之间的压迫感,营造出流动、轻松的空间关系。

△九班幼儿园与文化中心的共生关系 ©直角建筑摄影
在细节语言上,文化中心裙房以厚重的横向肌理锚固大地,幼儿园则采用轻盈的竖向银白色格栅作为核心概念。在满足安全规范的同时,提供了通透的视野与柔和的光影过滤,营造亲切的尺度感与有机的共生感。

△幼儿园立面 ©直角建筑摄影
材料系统研究
在材料与建构层面,设计也延续了“艺术山林”的叙事逻辑。裙房作为“山”的载体,其表皮系统历经多轮研究,最终选择通过直面与折面的银灰色穿孔铝板的拼贴肌理,形成如地质层理般富有张力与深度的肌理。

△立面细部 ©在场造象工作室

△立面细部 ©直角建筑摄影
我们对穿孔板的图案排布与穿孔率进行了专项研究,经过多次打样与现场校对,平衡了实墙体的厚重感与开窗所需的采光功能。最终确定的30%穿孔率,在兼顾室内自然光线引入的同时,亦保持了剧场等实体功能空间外立面的整体性与雕塑感,让“山”的意象在细节处得以细腻呈现。

△穿孔板打样研究 ©HHD深圳华汇设计
片区“文化心脏”与未来“艺术绿洲”
安托山公共文化中心,是一次以建筑为媒介的“城市修复”实践。它修复的不仅是物理空间的断层,更是公共生活的连续性。让建筑超越了功能容器的范畴,转化为一个能持续产生文化能量、连接人与人、过去与未来的文化心脏。
当未来的市民漫步于其穿透的架空层,或驻足于屋顶花园远眺时,他们将能感知到,这座建筑如何将一段沉重的工业历史,承载并升华为一片轻盈的艺术绿洲。


△片区“文化心脏” ©直角建筑摄影

△艺术绿洲:左图©在场造象工作室,右图©直角建筑摄影

△艺术绿洲 ©在场造象工作室
技术图纸

△总平面图 ©HHD深圳华汇设计

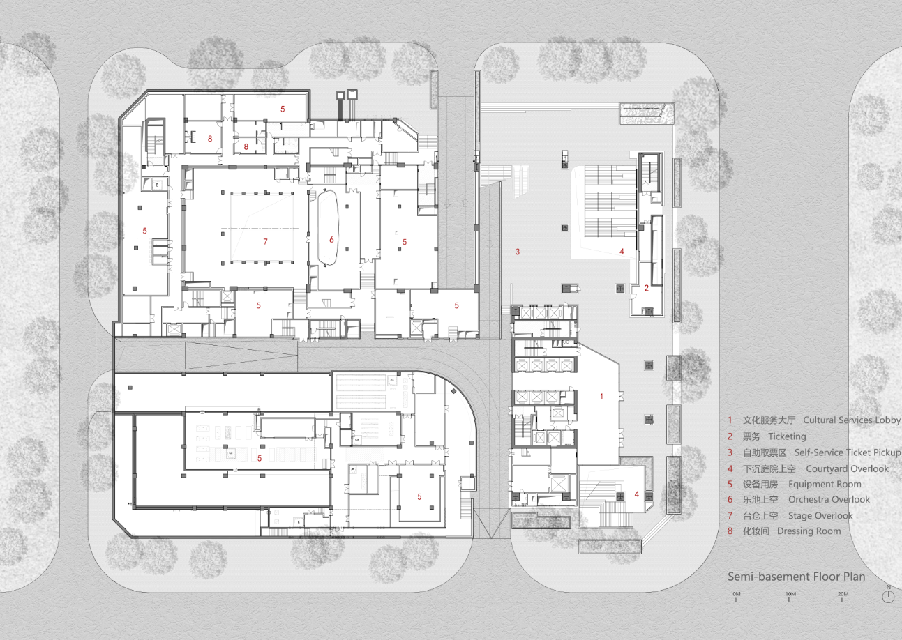
△首层平面图 ©HHD深圳华汇设计

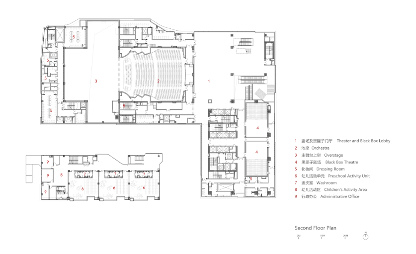
△二层平面图 ©HHD深圳华汇设计

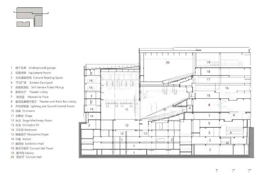
△剖面图 ©HHD深圳华汇设计

△节点图 ©HHD深圳华汇设计、在场造象工作室
项目信息表
项目名称:安托山公共文化中心
项目地点:中国广东深圳福田
业主单位:深圳市福田区公共文化体育发展中心
代建单位:华润(深圳)有限公司
建筑设计:HHD深圳华汇设计
主创建筑师:肖诚
前期方案设计团队:印实博、何啟帆、毛伟伟、刘佳丽
方案深化及实施团队:毛伟伟、刘佳丽、麦梓韵、傅艺玲、张尉立、庞舒萍
设计总包联合体:广东省建筑设计研究院集团股份有限公司、深圳市天华建筑设计有限公司、奥雅纳工程咨询(上海)有限公司深圳分公司(排名不分先后)
景观设计:深圳翰博设计股份有限公司
室内设计:深圳市假日东方室内设计有限公司
灯光顾问:HDA汉都设计顾问(深圳)有限公司
标识设计:深圳三度环境标识有限公司
剧院顾问:深圳市中邑建设集团有限公司
结构类型:框架核心筒结构(文化中心)、钢筋砼框架结构(幼儿园)
材料: 铝板、拉丝不锈钢板、玻璃、质感涂料
用地面积: 10609平方米
建筑面积: 105114平方米(地上:63991平方米,地下:41123平方米)
设计及竣工时间: 2019-2025
摄影:直角建筑摄影、在场造象工作室