"/>
设计机构|WHY Atelier(上海吾外建筑设计有限公司)
项目类型|公共建筑
项目地点|北京市
每种文化中的优秀建筑,其文化塑造的典型代表都是精神性的东西,蕴含一个民族与时代的价值取向与情感寄托的意义。中国传统建筑注重自然和谐而不是对立,注重群体乃至整体环境的艺术处理,注重建筑作为文化载体的精神功能,讲究抓住形似之外的神韵,同时还要赋予物象深刻的寓意。
The outstanding architecture in every culture, as a typical representation of cultural shaping, embodies spiritual elements, carrying the value orientation and emotional significance of a nation and its era. China's traditional architecture emphasizes harmony with nature rather than opposition, focuses on the artistic treatment of the collective and even the overall environment, highlights the spiritual function of architecture as a cultural carrier, and strives to capture the essence beyond mere resemblance, while also endowing objects with profound symbolism.
麟阁书院处于北京沙滩后街以南的企业总部办公园区里。我们在设计中着力于捕捉中国传统文化的气质内涵,包括雍容,大气,人文,和平等等。(图1麟阁书院)
Lingge Academy is located in the corporate headquarters office park south of Beijing's Shatan Houjie. In the design, we focused on capturing the essence of China's traditional culture, including grandeur, magnificence, humanity, and peace. (Figure 1: Lingge Academy)

(图1)麟阁书院Figure 1: Lingge Academy

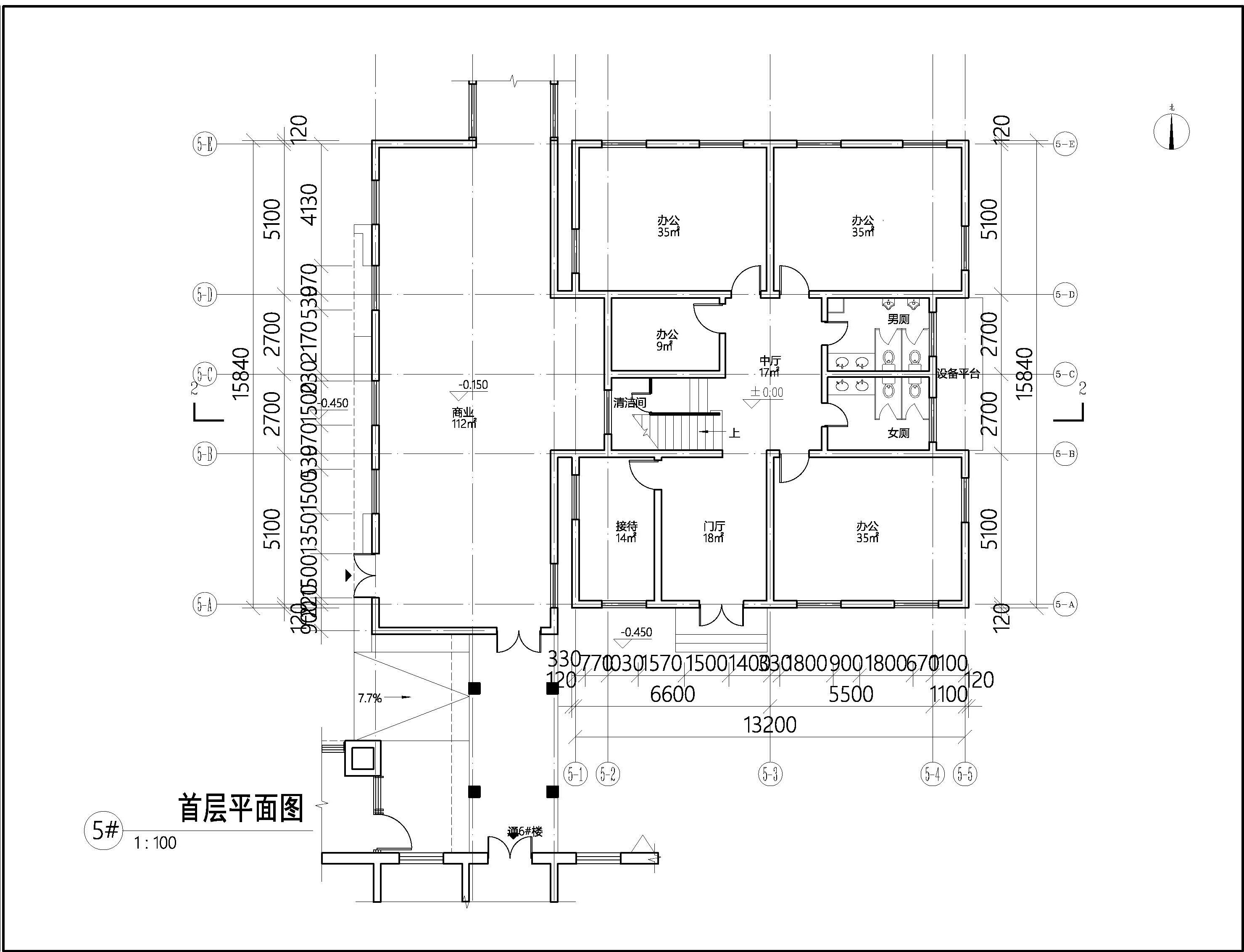
(图2)麟阁书院首层平面Figure 2: Plan of Lingge Academy

(图3)麟阁书院改造前Figure 3 Lingge Academy before renovation
我们在改造设计的时候,除了要照顾到原始建筑比较方正规则的造型和因老旧结构不能大动的结构体系之外,还要思考企业形象如何能结合北京建筑传统特色的前提下如何具有国际化的企业形象。(图2麟阁书院平面,图3. 麟阁书院改造前)麟阁书院近邻北大红楼,北京的北大红楼代表红色文化,象征着革命的火种,党的火种。麟阁书院设计吸取北大红楼红色文化中的鲜明和年青的气质,总体构成上通过红砖和灰砖的搭配使用,使得在与北大红楼传统气质融合的基础上实现先锋精神,将过去时代的记忆和新时代的朝气融合为一。设计选用的砖墙红色与浅米色洞石及与中国朱红窗的搭配与协调,力求从红砖的砌法,材料组合的时代性,整体建筑的简约气质中都传达出象征着蓬勃的青年革命精神在新公共空间的传承。(图4北大红楼,图5麟阁书院改造后)
When redesigning the project, in addition to considering the square and regular shape of the original building and the structural system that cannot be significantly altered due to its old age, we also had to think about how to combine the corporate image with the traditional architectural characteristics of Beijing while maintaining an international corporate image. (Figure 2: Plan of Lingge Academy, Figure 3: Lingge Academy before renovation) Lingge Academy is located near the Red Building of Peking University, which represents the red culture of Beijing and symbolizes the revolutionary spark, the Party's spark. The design of Lingge Academy draws inspiration from the distinct and youthful atmosphere of the Red Building of Peking University, using a combination of red bricks and gray bricks to achieve a blend of avant-garde spirit with the traditional charm of the Red Building, merging the memories of the past era with the vitality of the new era. The red brick walls selected for the design, paired with light beige stone and the vermilion windows of China, aim to convey the enduring spirit of youthful revolution in the new public space through the masonry techniques of red bricks, the contemporary material combinations, and the minimalist overall architecture. (Figure 4: Red Building of Peking University, Figure 5: Lingge Academy after renovation)

(图4)北大红楼Figure 4: Red Building of Peking University 
(图5)麟阁书院改造后Figure 5 Lingge Academy after renovation
在材料设计上,砖在北京城中是一种主要建筑材料。我们在麟阁书院采用的都是红砖幕墙。这个砖幕墙体系就是把排列好的黏土砖砖穿钢筋然后做为幕墙挂在建筑表皮,同时实砌成墙体,这个体系的特点是保温性特别好,冬暖夏凉,是在欧洲普遍使用的一种优越的节能幕墙体系。在砖缝的处理上,我们缩小了一般的施工砖缝10cm的缝宽至6cm.并且缝的抹灰方式不是满缝,而是砖表皮内嵌2-3cm的模拟空缝的效果,这样砖缝之间是有阴影的,整个砖墙就看起来更均质,更立体,更有层次。红砖幕墙使用的是标准尺寸的黏土砖,红砖与灰色花岗岩窗套结合,配有浅碧色窗框,整体的建筑形象比较明亮。在一片灰色的基调中,红砖墙面增加了整个园区场所的活力,同时又从整体上保持了灰色主基调,符合北京城总体保护规划大的基调统一的要求。(图6麟阁书院局部,图7麟阁书院透视)
In material design, bricks serve as a primary construction material in Beijing. The Lingge Academy employs red brick curtain walls, a system that involves arranging clay bricks with embedded steel bars to form a curtain wall structure while maintaining solid masonry walls. This European-inspired energy-efficient system excels in thermal insulation, providing warmth in winter and coolness in summer. For joint treatment, we reduced standard construction gaps from 10cm to 6cm, using a 2-3cm simulated gap technique within brick surfaces instead of full joint filling. This creates shadowed inter-joint effects, enhancing the wall's visual uniformity, three-dimensionality, and layered texture. The red brick curtain wall utilizes standard-sized clay bricks paired with gray granite window frames and light green window frames, creating a bright architectural ensemble. Within the gray base tone, the red brick walls inject vitality into the campus while maintaining the overall gray aesthetic, aligning with Beijing's urban conservation planning requirements. (Figure 6: A partial view of Lingge Academy; Figure 7: Lingge Academy perspective)

(图6)麟阁书院局部Figure 6:A partial view of Lingge Academy 
(图7)麟阁书院透视(Figure 7) Perspective of Lingge Academy
在建筑压顶的材料选择上,我们选择了黄金麻与红色对比,同为暖色,整体从冷暖色调上实现不同材料的彼此协调,相互融合。(图8麟阁书院局部)
For the architectural cladding material selection, we chose golden hemp against red, both warm tones, to achieve harmonious integration of contrasting materials through the interplay of warm and cool hues. (Figure 8: Partial view of Lingge Academy)
在窗框的设计上,对于窗框的分布,我们在首层商店的部分采用了大玻璃,结合室内灯光同时起到大面积橱窗展示的作用,比较简约。办公楼的标准层我们主要使用了浅碧色的明框窗框,之所以采用浅碧色,是因为和园区内的建筑墙面的主材,灰砖,红砖匹配度都比较好,而且呈现的感觉是含蓄内敛,提亮了整体园区的色调。(图9)麟阁书院透视
In the window frame design, we implemented frameless large glass panels on the ground-floor shops, which function as expansive display windows while integrating indoor lighting, creating a minimalist aesthetic. For the standard floors of the office building, light green framed windows were predominantly used. This color choice was made because it harmonizes well with the gray and red brick walls of the surrounding buildings, while its understated elegance enhances the overall color scheme of the campus. (Figure 9) Lin Ge Academy Perspective
(图8)麟阁书院局部(Figure 8) Partial view of Lingge Academy 
(图9)麟阁书院透视(Figure 9) Perspective of Lingge Academy
麟阁书院位于园区出入口附近,建筑为了与北京古城核心区街道风貌相协调,选用了中国红色的明框窗框,红色窗框与灰砖墙面搭配,从抽象简洁中呼应老北京建筑红色木结构的气质风范。(图10麟阁书院细部局部)
Lin Ge Academy is located near the entrance and exit of the park. To harmonize with the street style of the core area of Beijing's ancient city, the building adopted the red framed windows of China, which are paired with gray brick walls, echoing the abstract and simple style of the red wooden structures characteristic of old Beijing architecture. (Figure 10, perspective of Lin Ge Academy; Figure 10, detailed view of Lin Ge Academy)

(图10)麟阁书院细部局部(Figure 10) Detail of Lingge Academy 
(图11)麟阁书院纵透视(Figure 11) Longitudinal perspective of Lingge Academy
麟阁书院虽然是在既有建筑上的改造,但是通过各种现代手段和传统意蕴的结合运用,比如灰砖和红色窗框的搭配,使得最终改造的成果呈现出既创新又与传统和谐共存的特质。通过运用平实材料,使用国际语汇,呈现高品质和典雅,在低调平实之中体现了中国传统的含蓄美。(图11,麟阁书院透视)
Although Lingge Academy is a renovation of an existing building, the combination of various modern techniques and traditional connotations, such as the pairing of gray bricks and red window frames, results in a final transformation that exhibits both innovation and harmonious coexistence with tradition. By using plain materials and international vocabulary, it presents high quality, elegance, and beauty, embodying the traditional understated beauty of China in a low-key and simple manner. (Figure 11, Lingge Academy perspective)
项目信息
项目名称:麟阁书院
建设地点:北京
建筑设计:WHY Atelier(上海吾外建筑设计有限公司)
项目负责人:须颖 汪瑞群
设计团队:汪瑞群 须颖 曹珍福 丁晓峰 张智民 苏海涛
合作单位:北京天鸿圆方建筑设计有限公司
总建筑面积:639㎡
项目状态:建筑竣工
设计时间:2022.1—2024.5
建成时间:2025.9
Project name:Lin Ge Academy
Project type:renovation of public building
Design:WHY Atelier
Website:https://mp.weixin.qq.com/s/l7QlZeu33_MIWAjbqBr0HA
Contact e-mail:why.atelier@qq.com
Design year:2022.-2024
Completion Year:2025.9
Leader designer & Team:Xuying Rick Wang & Caozhenfu Ding xiaofeng Zhangzhimin Suhaitao
Project location:No.22, Houshi Street, Beijing
Gross built area: 639㎡
Photo credit:WHY Atelier
图片来源
1. 2,3,4 WHY Atelier
2. 摄影师 陈向飞
