由AUBE欧博设计出品的深圳光明数字智造产业园于2023年5月中标,经历了2年的设计建造,在2025年2月竣工并于同年3月交付首批企业,是光明区首个优质产业空间试点、深圳首批“工业上楼”试点项目。
光明数字智造产业园由特区建工集团“投建营”一体化开发,整体设计按照“低成本开发+高质量建设+准成本提供”的优质产业空间供给模式,通过“总成本+微利”的方式,面向符合条件的企业进行分割销售,实现优质产业空间供给与优质企业需求的精准匹配。

项目整体鸟瞰©TAL

园区大门人视图©TAL
园区规划打造集生产、住宿、商业、食堂、社康中心及公共服务配套等功能于一体的现代化先进制造产业园,为企业提供标准化为主导、定制化为特色的高标准制造业产业用房。

项目整体鸟瞰©TAL

园区总平面图
项目位于深圳市光明区公明街道李松蓢社区,总占地面积约2.2万平方米,计容总建筑面积约11万平方米,其中高标准厂房约9.3万平方米,宿舍约1.3万平方米,配建商业、食堂、熟食中心、社康中心、社区体育活动场地等公共服务配套。

项目区位条件图

各功能组合平面图
为了构建优质产业空间,AUBE欧博设计从“规划-建筑设计体系”的角度出发,提出“向特区学习,新厂房五点”的口号,打造具有新空间、新配套、新流线、新业态和新形象的“五新工厂”,以引领未来“工业上楼”发展方向,让本项目成为南光高速区域的一张亮丽名片。

南光高速方向半鸟瞰©TAL

园区主入口©TAL
新空间——PRFS空间组织
全新的功能组织、生产配置和分户模式共同构筑本项目的“新空间”。功能组织方面,AUBE欧博设计采用高效集约的“一字型”厂房空间,包括生产、研发、运输和配套(PRFS空间组织)。

园区局部建筑立面©TAL

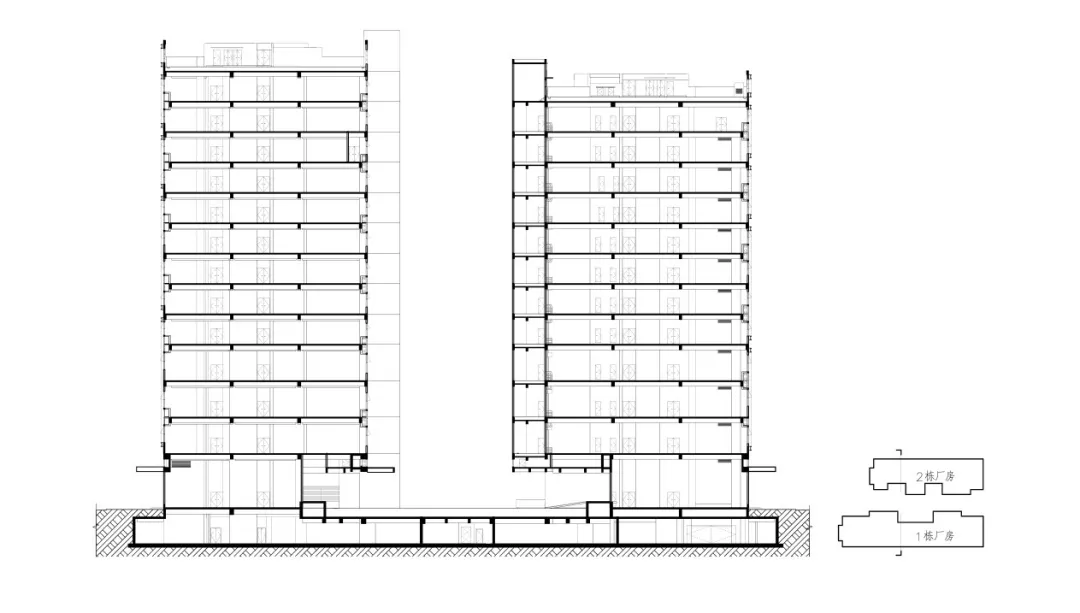
1栋厂房立面

厂房剖面
新配套——生产生活双配套
作为一个实现产城融合、满足各方需求的工业上楼示范园区,生产配套功能包括员工宿舍、厂房高区的观景露台、企业服务中心、室外楼梯休憩和活动平台、集散广场等。

中庭回看入口©潘婕
与此同时,设计师着眼于满足企业员工基本需求的生活配套设施,通过打造符合园区特色和时代特征的宿舍、食堂、体育活动等设施,来提升年轻一代产业工人的自豪感和满意度;园区还将提供商业、社康服务中心和熟食中心等公共配套设施,以满足周边市民对城市综合服务的需求。

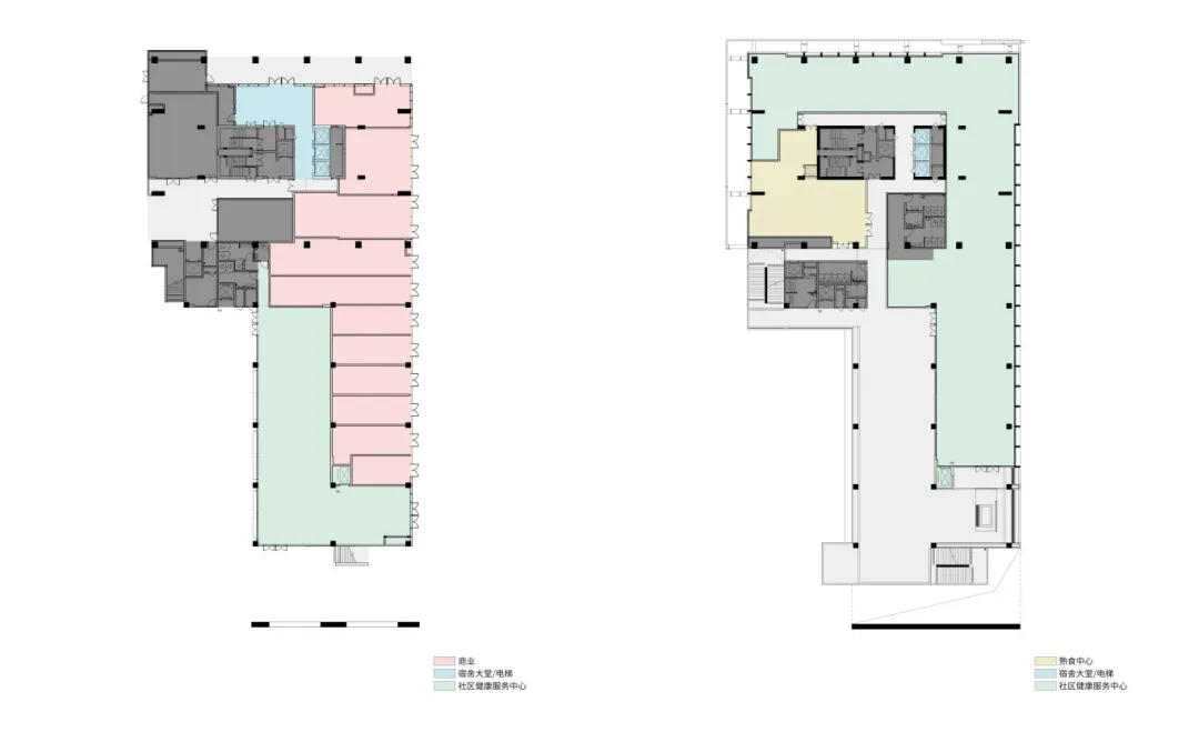
3栋一层平面图/3栋二层平面图

3栋立面

建筑内部空间©TAL
架空层入口©潘婕
新业态——综合产业园
园区具有联合总部和生产基地的双重功能。未来,多家优质企业将在园区落户,形成一个综合功能齐全的联合总部,集生产、研发、办公、展示等多个领域于一体。此外,园区通过引导和筛选入驻企业的方式,旨在打通产业链的上下游,使园区成为一个集研发、中试和生产为一体的新型生产基地。同时,后期运营通过与入驻企业紧密合作,将促进技术创新、产品研发和市场拓展等方面的协同发展,以提升整个园区及其入驻企业在相关产业中的竞争力和影响力。

园区内公共空间©TAL
新流线——合理规划布局
园区内设立了明确且合理划分的人与车流线系统:有效地将不同类别的人员和车辆有序引导至目标地点,并保证彼此之间无干扰,旨在提供一个高效安全、便利有序、适应各类使用者需求的园区环境。车的流线主要包括货车和小型机动车的流线,这两类流线在车辆进入园区出入口位置时就进行了合理划分;而人的流线则主要分为企业蓝领、白领以及配套受众市民的流线,针对不同人群,通过总图上划定的不同出入口、门厅和疏散楼梯,实现了相互之间的有效分流。
新形象——生产机器美学
如何在有限的成本条件下,创造一个具有现代秩序的“新形象”是亟待解决的难点。设计团队运用厂房功能形式的转化、明确的体块构成、各种外立面部品的精密组合、大胆而精心选择的色彩和材料运用,以及幕墙细部设计中隐喻性元素等手法共同构建起新厂房的“生产机器美学”。同时,园区充分利用南光高速公路流量,在设计上考虑了超长主立面、独特的塔冠以及挺拔的山墙造型,为入驻企业和园区提供更多展示机会。

明亮有秩序的立面©TAL
在土地紧缺的深圳,“上楼”不仅是趋势,更是一种“现象”,人们把地面用于更多的功能,然后向天空要资源。我们相信,“专精特新”大厦将成为深圳“上楼精神”的历史见证;未来,温暖高效的“专精特新”大厦将是AUBE欧博设计向特区奉献的最好礼物。
项目信息
项目地点:广东省深圳市光明区
客户:深圳市产业空间发展公司
设计范围: 规划、建筑
主要功能:生产、宿舍、商业、食堂、社康中心及公共服务配套
用地面积约: 22 300m²
总建筑面积约: 131 600m²
设计/竣工年份:2023/2025
AUBE欧博设计团队:
项目主创:税雪原
项目负责人:李媛琴
方案设计:张文雅、潘婕、李泽鹏、陈奕斌、闫鹏、黄柳、唐玄武
施工图设计:马小月、黄新方、李志敏、王峥、刘长坤、彭志鹏、罗丽莲、何志力、凌亮、聂育华、胡海萍、叶绍展