在浙江省台州市仙居县神仙居旅游度假区,毗邻永安溪支流北岸的一处开阔河谷地带,我们打造了一座与自然深度对话的“河谷咖啡”。基地东望神仙居国家公园连绵的山脉轮廓,西接茂密竹海,南临蜿蜒流淌的溪水,享有得天独厚的生态景观资源。区域属典型的亚热带季风河谷气候,四季分明,夏季风穿行竹海、冬季候鸟掠空,为项目注入了动态变化的自然语境,也呼应着我们坚信的理念:地方即生命(Dwelling Perspective)。

建筑位置 ©王尚
正如剑桥大学社会人类学教授Tim Ingold所言:“我们不是把地方当成一个静止的物件来看,而是住在地方里,和地方一起流动,一起生成的。”我们每一个人,都是以流动的方式旅居地方、闯入又离开,而所有曾经历的地方,最终都造就了今日之我。
设计概念:河谷流动的诗学
设计概念根植于“河谷流域”的地理与人文意象,并以“浪人”为核心精神载体。我们试图将神仙居的山势起伏、溪流的曲折迂回、竹海的摇曳层次,以及气候与鸟迹所带来的时序变化,转化为空间与体验的叙事线索。咖啡店不仅提供茶、咖啡、酒与在地轻食,更旨在打造一个融合文化体验与自然感知的“水系生活目的地”,邀请都市人群来此放松感官、体验流动,在每一个当下成为“浪人”,如流水般自由生活。正如贝聿铭所说:“生活即建筑,建筑是生活的镜子。”我们围绕“流动”的主题,在溪畔打造这处可远眺山景、静听水声的驻足之所,希望人们能在此真正“浪起来”。



建筑夜景 ©王尚

“浪人”概念 ©跃界飞地品牌咨询
![]()
设计策略:曲线与光影的构筑
建筑与室内设计以“流动性”作为统一主题。外部立面采用曲线落地玻璃窗和弯折墙体,既呼应溪水波纹,又减弱建筑体量对环境的压迫感。平面布局围绕中央的“浪人塔”呈半围合展开,通过多向开口引导气流与视线穿透,增强空间通透性。室内以框架与曲线语言构建,天花采用连续弧形造型,通过嵌入灯带以拟水光潋滟之境。



建筑立面 ©王尚
![]()
![]()
空间核心为功能性艺术构筑物:浪人塔。塔体采用钢结构与回收砖复合建造,高度约7.5米,内部集成雨水收集装置,用于植物灌溉与卫生冲洗,体现生态可持续理念。塔身设置蜿蜒而上的阶梯,呼应仙居“得道升仙”的传说,也模糊了室内与室外的界限。登临塔顶,可俯瞰溪流全景,感受地貌与心灵的双重升维。



室内空间 ©王尚


室内细节 ©王尚

浪人座椅 ©王尚
![]()
围绕主体建筑,我们在公园延伸区域布置了柔性装置与散点座位,鼓励人们随意穿梭于溪畔与草木之间,自由探索风土的多样性。同时,我们将借助仙居的山林、竹海与溪流,发起徒步、冥想、自然音乐会、桨板等多元活动,聚集一批向往水系生活的“浪人”群体,共同在流动中感知当下,解锁土地的新玩法。


景观装置 ©王尚
品牌策略:跃界咨询的运营共生
本项目品牌运营由跃界品牌咨询公司全程协同,采取运营前置策略,与建筑、室内同步推进。基于台州在地风物与“浪人”精神,跃界提出了“水系生活目的地”的整体定位,并系统规划了产品体系、视觉符号、服务流程及内容活动,使“河谷咖啡”超越传统餐饮空间,成为具有鲜明在地标识和可持续运营能力的品牌场域。这一整合方式确保了品牌定位、空间功能与用户体验的高度一致,有效传达出项目的资源特色与差异化价值,实现从设计到落地运营的全链条把控。

品牌物料 ©跃界飞地品牌咨询
未来愿景:共浪在地的文化生成
我们更希望以此为契机,开启一场地域营造的“大浪”。通过“河谷咖啡”这一文化窗口,链接艺术家、音乐人、探险家与策展人,吸引全球“浪人”来此探寻在地文化的可能性,推动乡镇文旅深度发展。让不同背景的人们在此相遇,碰撞出新的艺术、音乐、展览与玩法,共同解码仙居、游玩台州,让地方在人的流动中持续生成新的意义。


日落鸟瞰图 ©王尚
河谷咖啡不仅是一个休闲场所,更是一个呼应在地、启发感知、推动文化流动的生命体。我们期待来到这里的人们,能够真正拥抱“生活就要浪起来”的态度,在水系河谷之中,与自然共生,与文化共流,与自己相遇。

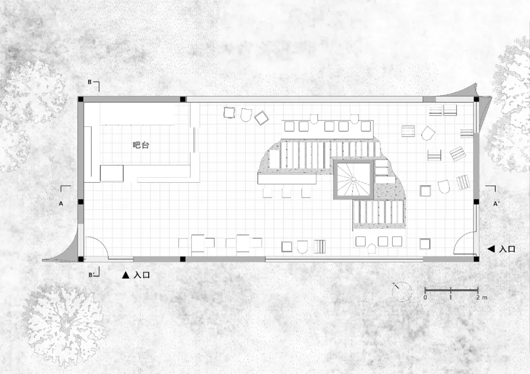
一层平面图 ©平介设计

爆炸图 ©平介设计


模型照片 ©平介设计
项目信息
项目名称:河谷咖啡
设计年份:2024.06-2025.03
品牌设计:跃界飞地品牌咨询
设计团队:
平介设计:吴江,张莹,吴嘉豪,曹开源,景万谦
苏州大学:杨楠,肖湘东
业主:河谷咖啡
项目地址:浙江省台州市仙居县神仙居旅游度假区希尔顿酒店旁公园
设计面积:120㎡
摄影师:王尚、跃界飞地品牌咨询
材料:张拉膜、海洋板、真石漆