"/>
设计机构|GN栖城设计
项目类型|社区公共建筑
项目地点|上海,奉贤区
在中国许多大城市的边缘,在近十年间“生长”出了一批面向老年人生活的社区。无论出于何种目的,它们不一而同地散发出一种温情与悲情交织的乌托邦气质。
Over the past decade, numerous retirement communities have been built on the outskirts of big cities in China. These communities often carry an atmosphere that combines warmth and sadness. We call it Seniortopia, which means utopia for seniors.
一群从现实生活中“脱嵌”出来的人,他们年龄相仿,或许有着类似的生活际遇,抑或对未来的模糊想象;他们接受压缩的私人空间,但享受着完善的公共设施,一种“集体化的家庭生活”;他们努力在这四墙之内重新建立社交圈,参加组织良好的活动,将陌生的生活变成熟悉的日常。
Elderly residences embedded from their familiar social network and moved into these seniortopias. They may be of similar age, share comparable life experiences, and harbor vague imaginations about their future. Despite having access to well-equipped public facilities, they accept compressed private spaces and live in a collective family-like environment. In this limited new space, they strive to rebuild social circles, participate in pre-arranged activities, and gradually familiarize themselves with the unfamiliar surroundings and people.
2017年新发展怡福荟项目启动,我们所做的第一步,便是对这种“乌托邦情结”发起了讨论:社区是否必须封闭?老人是否是唯一住户?配套设施到底服务何人?我是否愿意常住其中?……
随着方案的深入,我们与业主找到了共同的信念:我们不要一个内向的“老年乌托邦”,而是面向“所有人”开放的社区。
When this project launched in 2017, our first step was to question this "utopian sentiment": Must communities be closed off? Should the elderly be the only residents? Whom should the facilities serve? … Would I myself want to live here long-term? As the design study progressed, we found the common ground with the client: we didn't want an isolated "seniortopia" but rather an open community for "all".

▲ 面向“所有人”的社区An open community for "all"
01. 边缘的风景 / Urban Fringe Landscape


▲ 项目周边是分散的村庄、农田,典型中国式城市边缘风景Surrounding area of the site
项目位于距离上海市中心约30公里的奉贤区奉城镇,周边由分散的村庄,大面积农田及大尺度路网组成的典型中国式“城市边缘风景”。
Our project is located in Fengcheng Town, Fengxian District, approximately 30 kilometers from downtown Shanghai. The surroundings consist of villages, vast farmlands, and extensive transportation networks, creating a typical Chinese "urban fringe landscape."
项目占地12万㎡,建筑面积约20万㎡。地块原为工业用地,在城市更新的大背景下,转性成为社会福利,医疗及文化设施的混合用地,这从侧面反映出政府部门对我们提出的开放型多元社区想法的支持与政策响应。
The site occupies 120,000 square meters, with total floor area of approximately 200,000 square meters. The site, originally industrial land, has been transformed under the urban renewal agenda into a mixed-use area for social welfare, medical, and cultural facilities. This transformation reflects government's support and policy responses to our vision of an open, diversified community. .

▲ 小镇中心鸟瞰 Aerial view of the village center
于是,我们的讨论进一步演变成为:如何让社区变得更加具有吸引力,不仅为未来的住户提供便利,也能为更大范围的周边村民带来更多的可能性,从而为这片城市边缘区创造一个中心。这个让“养老社区”成为“区域活力中心”的想法让我们兴奋不已。
Our discussions then shifted to making the community more attractive, which creates a central hub of this "urban fringe landscape", not only for future residents but also for their neighborhood. The idea of turning a retirement community into a "regional vitality center" excited us.

▲ 22个盒子组成的“小镇中心”成为“区域活力中心”的关键所在"Village center" in the project composed of 22 boxes
02. 名称的改变 / Name Changing
项目建成前不久,运营团队告诉我们,项目名称从“怡福荟社区”改成了“新发展怡福荟康养小镇”。这个看似微小的变化让大家感慨不已:我们看到了运营理念与规划理念在不断靠近。


At the conceptual design stage, we had proposed the idea of "village-like" community with the design approach from an urban perspective. This idea pushed us constantly to create richer public space forms, more open traffic arrangements, and flexible cluster divisions. It was conceived as a multifaceted space that balances living, socializing, culture, and residence.

▲ 原始功能的解构与重组,创造积极的城市生活场景The deconstruction and reorganization of original functions
我们持续和运营方探讨如何从“社区型管理”向“城市化服务”转变的可能,如何让空间和服务支持丰富的社群发展。由此带来的对运营的挑战是不言而喻的,所幸的是大家对项目“多元+开放”的内核都深信不疑。
We continued discussions with the operations team on transitioning from "community-based management" to "urban public services" and on how spaces and services could support a vibrant community. We knew this would present significant challenges for operations, but fortunately, everyone believed in the project's core principles of "diversity + openness."

▲ 多元,开放,面向所有人的社区A diverse, open, and inclusive community for all
03. INSIDE OUT
传统配套的空间落位不外乎位于社区中心的“内向型”或者贴临城市的“外向型”。我们的想法是尝试一种“Inside out”内外穿插的办法。
Traditional community facilities are either "inward-facing" community centers or "outward-facing" urban public space. Our approach was to explore an "inside-out" strategy.
配套用地呈横向的“T”型,面向城市界面展开的同时深入社区内部,从而获得对外和对内最大的接触面,吸引外部市民和社区居民在此处汇聚。
The area of facilities are arranged in a horizontal "T" shape, extending towards the urban interface while penetrating into the inside of community. This maximizes external and internal interfaces attracting both urban citizens and community residents to gather.

▲ 俯瞰 Top view

▲ T型配套面向城市界面的同时深入社区内部The T-shaped amenities face the urban interface and extend into the community
由此带来的另一个效应,是各个居住组团获得了一定程度上的公共性,同时也变得更加独立。
我们设想的状态是未来生活区的管理边界收缩至每一个居住组团,让剩余的空间都具有面向公众开放的可能性。这种对于“公”与“私”的边界的讨论也是项目推进中一个持续的议题,相信也将伴随着社区的发展不断会被重新提起。
This layout also had another effect: each residential cluster gained more publicity while becoming more independent. Our envisioned future state is for management boundaries to shrink to individual residential clusters, allowing the remaining spaces to be fully open to the public. The negotiation between "public" and "private" boundaries became an ongoing topic throughout the project and will likely remain relevant as the community evolves.

▲ 城市界面的文体综合楼与深入内部街区的小镇中心Sports Complex at the urban interface and village center embedded in the internal streets
04. 独立与连接 / Connectivity
无论是直接面向城市“文体综合服务楼”还是深入内部的“小镇客厅”,我们尽可能将各种功能模块从建筑的“整体性”中解放出来,让它们拥有相对独立的形体并直接面向公共空间(广场,街巷,庭院)。设计的初衷是希望它们成为拥有独立“地址”的场所,并在未来具备独立发展变化的可能。
Whether the Centralized Sports Complex facing the city or the decentralized facilities deep inside, we aimed to liberate functional modules from the "integrity" of architecture. These modules have relatively independent forms, directly facing public spaces such as plazas, alleys, and courtyards. Our design intent was to create places with their own "addresses," offering the potential for independent development in the future.


▲ 文体综合楼作为主入口,以敞开姿态面向城市及区域人流Sports Complex as the main entrance
与此同时,设计还加入了三个环形动线将它们互相连接:“综合服务楼”的“运动环”,“小镇中心”二楼的“兴趣环”及一楼的“探索环”。这些具有不同的空间形态特征的“环”不仅仅是高效的交通空间,也是重要的活动及交流场所。
Additionally, we designed three circular routes to connect them: the "Activity Loop" in the Sports Complex, the "Interest Loop" on the second floor of the decentralized facilities and the "Exploration Loop" on the ground floor. These loops, with varying spatial characteristics, serve not only as efficient transit paths but also as key spaces for activities and social interactions.

▲ 位于项目入口的综合服务楼内有一条“运动环”A "sports loop" in the Sports Complex

▲ 综合服务楼各楼层功能及运动环分析图Analysis diagram of functions and sports loop on each floor of the Sports Complex

▲ 综合服务楼立面Facade of the Sports Complex


▲ 位于综合服务楼屋面的“运动环”跑道Activity track located on the roof of the Sports Complex
位于主入口面向城市人交流综合服务楼承载了大量文体类功能业态,通透的玻璃连廊以极大的横向跨度连接了左右两侧综合楼主体建筑,实现功能和空间上“无障碍”贯通,进而构成“运动环”。
The Sports Complex at the main entrance, it was designed for urban engagement, host numerous cultural and sports functions. Transparent glass corridors with large horizontal spans connect the main buildings on either side, forming an "Activity Loop".

▲ 小镇中心一层的 "隐藏式”风雨连廊构成了一条“探索环”The "hidden" covered corridor on the ground floor of the village center forms an "exploration loop"

▲ 二层的玻璃连廊和走廊阳台体系构成“兴趣环”Second-floor glass corridors and balcony systems forming an "interest loop"
位于小镇中心22个盒子二层的玻璃连廊和走廊阳台体系,共同构成了一条贯穿整个区域的环线。
同样是这22个盒子,由二层建筑楼板和连廊巧妙构成的“风雨连廊”,于小镇中心配套场地的一层,构建出一条贯穿在各个大小院子中的有趣环线。
The 22 boxes in the Village Center are connected by second-floor glass corridors and balcony pathways, forming a continuous loop across the area. The same 22 boxes also feature a "covered corridor" created by the second-floor slabs and bridges, weaving through various courtyards on the ground level.


▲ 在二层的连廊和阳台体系,一些有趣的活动经常在发生Various interesting activities often occur in the second-floor corridor and balcony system


▲ 因二层连廊而创造出一层的“隐藏式”风雨连廊穿梭在各类大小院子间The corridors create the "hidden" covered corridors on the ground floor, weaving through the courtyards

▲ 新发展怡福荟康养小镇内,位于小镇中心内的下沉式广场The Sunken Plaza of the project
05. 非正式交流 / Informal Spaces
友好舒适的社交活动往往是“非正式“的,它们时常发生在“之间”(Inbetween)或者空间的边缘,是闲逛与无聊的产物,同时也是因人、因时而异。
Friendly and comfortable social activities are often "informal." They frequently occur in "in-between" spaces or edges, born from wandering and idleness, and vary with time and people.
项目里的“小镇中心”,由一系列上下错位叠合的院落组成。在设计过程中,我们一方面想要努力做到“精准”控制场景,一方面又希望能够留出一定的设计“容差”。
The decentralized facilities consists of a series of staggered and overlapping courtyards. During the design process, we sought to precisely control scenes while leaving room for design "tolerance."
如此,最终在场地内产生了众多令人感到意外和惊喜的零散小空间:它们或是转角处的露台,或是过街楼上方的天井,或是被小径穿越的院落……许多有趣的角落、视线关系,直到建成后才被发现,而我们也希望这份对空间的好奇心,能够传递给未来的住户和访客们。
As a surprised result, numerous delightful small spaces emerged on the site — terraces at corners, skylights above, courtyards by the paths. Many fascinating nooks and sightlines were discovered only after completion. We hope this sense of spatial curiosity will be shared with future residents and visitors.



▲ 小镇中心体块推敲 Village center massing studies

▲ 叠合关系形成的院落 Stacked courtyards

▲ 坐落在主轴线上的工作坊入口廊The studio entrance is located on the main axis


▲ 一条玻璃坡道通廊架空连接综合服务楼左右两侧的2~3FAn elevated glass ramp corridor connects the left and right sides of the Sports Complex at levels 2 to 3
06. 成长的可能 / Growth Potential
就在撰文前不久,来自运营团队的消息,项目北侧的亲子农场已经开放了,接下来还准备在图书馆办敦煌与当代艺术展,同时他们还希望我们也能尽快入驻小镇中心的艺术家工作室……
The first floor of the decentralized facilities is scattered with "undefined" spaces, including 22 inward-facing studios and outward-facing glass boxes, which could be flower shops, cafes, clubs, and salons.




▲ 庭院分析 Courtyard analysis

▲ 院子 Courtyards

▲ 工作室 Studios
“综合服务楼”四米多宽的连廊同样未被定义,最初的想法是作为邻近功能空间的延伸,而现在,运营者们对此已经有了更多有趣的想法:空中画廊,健身环道……我们也乐于看到使用者们能够对空间进行进一步的创作。
The over-four-meter-wide corridors of the Sports Complex are also undefined. The initial idea of the design was to use them as extensions of adjacent functional spaces. The operations team now envisions them as aerial galleries, fitness loops, and more. We're pleased to see users embracing the space with further creative interpretations.
我们设计的起点源自一种“反乌托邦”情结,最后似乎又进入了另外一种“乌托邦”的理想:一个面向所有人的多元,开放,成长的社区。而这个理想的实现,从项目建成的那一刻才真正开始。
Our idea began with an "anti-utopian" sentiment but seemed to evolve into another form of utopia: a diverse, open, and evolving community for all. We seem to have forgotten this is a community for elderly, and this is precisely the beginning of realizing the ideal.

▲ 用餐中的长者 Elderly residents dining
08. 图纸 / Draws

▲ 总平 Master plan

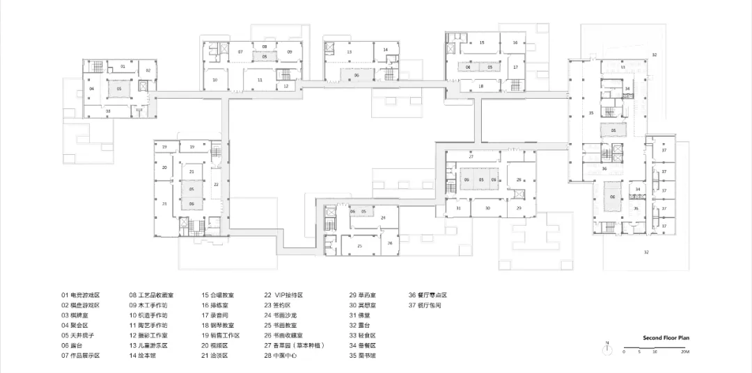
▲ 平面-小镇中心地面层 1F plan of Village Center

▲ 平面-小镇中心2层 2F plan of Village Center

▲ 平面-小镇中心屋面层 Roof plan of Village Center

▲ 平面-综合楼地面层 1F plan of Sprots Complex

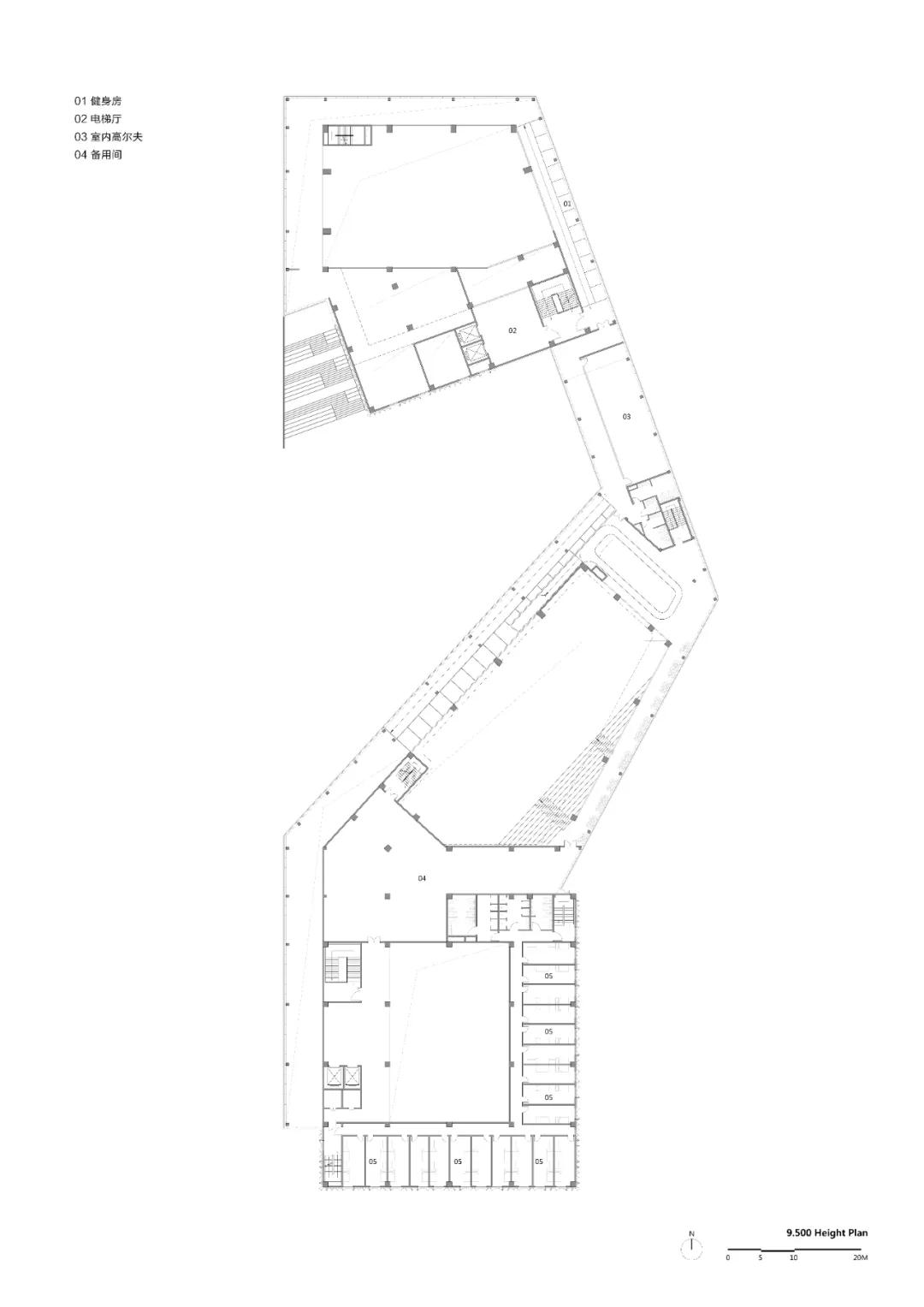
▲ 平面-综合楼9.5米标高位置9.5m elevation plan of Sprots Complex

▲ 平面-综合楼屋面层 Roof plan of Sprots Complex

▲ 剖面-小镇中心的多级庭院 Sections - Multi-level courtyards of Village Center


▲ 剖面-小镇中心 Sections of Village Center


▲ 剖面-综合楼 Sections of Sprots Complex
详细信息
项目名称:上海新发展怡福荟康养小镇
业主单位:新发展集团
运营单位:上海信养养老服务有限公司
项目地点:上海,奉贤区
用地种类:医疗卫生、社会福利用地
策划/建筑设计:GN栖城设计
主创建筑师:管轶群、史梁
设计团队:丛燕飞、施政磊、袁呈翔、尹桂林
施工图设计:中船第九设计研究院
设计时间:2017年
建成时间:2022年
项目规模:27 万㎡
摄 影:梁文军
获 奖:
2024 WAF世界建筑节入围奖;
2023《财富》中国最佳设计奖;
2023 上海建筑学会佳作奖;
2021 WAN Awards Future Projects-Healthcare GOLD(医疗康养建筑·金奖);
…
Informations
Project Name: Joyful Community, Shanghai
Client: New Development Group
Operations: Citic Aged Care
Location: Fengxian District, Shanghai
Land Type: Healthcare and Social Welfare
Architectural Design: GN Architects
Chief Architects: Guan Yiqun, Shi Liang
Design Team: Cong Yanfei, Shi Zhenglei, Yuan Chengxiang, Yin Guilin
Photography: Liang Wenjun
Awards:
2024 World Architecture Festival (WAF) / Shorlist;
2023 FORTUNE Magazine China Best Designs / Winner;
2023 ASSC The Architecture Creation Award / Masterpiece;
2021 WAN Awards Future Projects / Gold;
