自2014年赢得台北上海商业储蓄银行总行大楼国际竞赛以来,JJP在企业形象与城市界面、土地利用与结构安全、环境永续与文化延续等多重议题中,展开了一场持续十年的系统性设计研究。

△ 上海商业储蓄银行总行大楼 ©YHLAA

△ 从民权东路看建筑外观 ©YHLAA
01 缘起 制度与环境的技术驱动
项目要在台北市城市干道民权东路与中山北路交叉口为上海商业储蓄银行重建一栋总部大楼。建筑前身为80年代都市摩登地标:美琪大饭店,尽管基地面积有限,且受松山机场航道65.49米建筑限高制约,但其周遭街廓肌理丰富,叠加聚气纳财的“大周天”风水格局,历来为繁华的区域核心商圈。

△ 用地与城市肌理 ©JJP

△ 传统风水格局与当代城市生活对建筑界面的影响 ©JJP

△ 上海商业储蓄银行新总行大楼的门户界面 ©YHLAA
02 结构逻辑 金融秩序与空间效益的系统整合
新建总行大楼在遵循风水对位原则的同时,通过结构外移释放最大室内净空——以“一个核心筒+一个斜肋构架”提升土地利用效率。

△ 一个核心筒+一个斜肋构架 ©JJP

△ 外观形成金融与钻石的几何联动 ©JJP
斜肋构架复刻钻石语汇----结构即外观
建筑外围的斜肋式结构(DIAGRID)采用“Y”“X”与“倒V”形构造。该系统在优化结构力流路径的同时,可显著减少钢材用量,并提升整体抗风与抗震性能。简约的几何语言形成多个切面,引起对钻石和金融秩序的联想。

△ 斜肋构架系统展开图 ©JJP

△ 从民权东路看建筑外观上简洁的钻石型几何语汇 ©JJP

△ 三种结构构造节点详图 ©JJP
系统整合实现多重空间----无梁柱室内
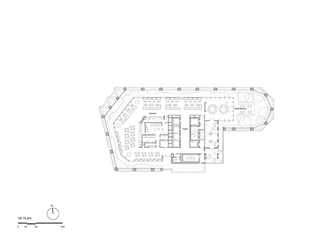
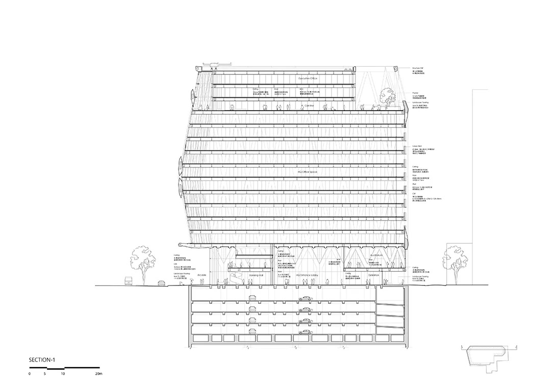
斜肋构架的形式语言是与功能精准耦合的结果:14—16层利用“倒V”结构形成立体的开敞界面,在高空打造俯瞰城市与游步花园的独特体验;4—13层标准办公层以“X”结构与新型节能幕墙的一体化设计,不仅获得更大的自然采光面积,也增强了室内外景观连续性与环境响应能力。

△ 建筑东西向剖面图 ©JJP

△ 跃两层的演艺厅 ©YHLAA

△ 跃三层的全开放大堂 ©YHLAA
该系统亦便于形成跃层空间——“Y”结构围塑出挑高11米的骑楼,联通“全开放大堂”与“营业大厅”两组重要的公共服务空间集群,通过全通透的优白玻璃幕墙,在力学表现与空间体验之间建立起双重透明性。

△ 骑楼与挑高三层的营业大厅 ©JJP

△ 骑楼幕墙采用清透的优白玻璃,透出精致的室内空间 ©YHLAA
03 可持续表皮幕墙的实验性建构
在金融建筑中,“透明性”历来是公开、信任与制度责任的象征,玻璃幕墙因此成为表皮的首选。然而,在高能耗与气候变迁的现实中,这类强调视觉穿透的表皮系统,愈发难以满足节能减碳的当代需求。
如何使幕墙从纯粹的形象表现,进化为整合气候响应与环境性能的复合构造?

△ 在中山北路与民权东路交叉口看幕墙效果 ©JJP
参数模拟与碳评估以数据导向材料决策
为回应立面设计的节能减碳挑战,JJP推出自研平台JJP Lab,与成功大学SBED Lab展开产学合作,建构出一套整合热辐射(Ladybug)、采光(DIVA)、能耗(EnergyPlus)等模拟软件的建筑性能评估机制,使设计团队在量体与材料尚未定案的初期,即可通过参数化建模,快速比对不同外墙系统的可持续表现。

△ 以EnergyPlus为引擎,比对一般Low-E玻璃、50%透光网膜玻璃与30%透光网膜玻璃对空调热负荷的影响 ©JJP
在进一步的建材评估中,设计团队引入由瑞士SEFAR公司研发的新型金属网膜玻璃。经模拟分析,相较于一般Low-E玻璃,透光率50%和30%的金属网膜玻璃分别可降低空调系统6.1%和8.2%的年耗电量,约减少碳排10—15吨。

△ 在民权东路看幕墙效果 ©JJP
相关研究成果不仅为业主决策提供科学依据,也整理为论文发表于第17届瑞士先进建筑表皮大会(ABS),并由JJP于2022年10月在伯恩研讨会上作公开汇报。
△ 建筑阳光受热分析 ©JJP

△ 三种幕墙隔热与抗紫外线性能分析 ©JJP
实体建模与感知建立----模拟之后的真实验证
为弥补软件建模的感知缺失,设计团队并置实物比对不同幕墙材料在日夜交替中的透明度变化,尤其关注白日里网膜玻璃视线从内而外单向穿透的特点;同时制作了1:1的建筑局部模型,试验和讨论施工工艺与精度。

△ 比对不同幕墙材料在日夜交替中的透明度变化 ©JJP
这种“软件模拟+实体测试”的双轨策略,不仅获得了真实环境中的使用体验,帮助设计师为隐私程度不同的空间精准配备适宜的外墙材料,也深化了幕墙系统实验性建构的可能。

△ 以实物弥补软件建模的感知局限 ©JJP
04 空间可视化幕墙、结构与空间的协奏
骑楼(1—3层)内侧无需考虑热负荷,更清透的优白玻璃成为首选;主要办公层(3—13层)借用50%透光网膜玻璃视线单向穿透的特征,兼顾采光和隐私;14层以上则通过30%透光网膜玻璃与卷帘形成双重屏障,应对高空热辐射。
这集中体现了后高技派的可持续设计观:建造方案终要符合并表达空间使用特征,并为使用者与环境的协同进化服务。
△ 幕墙、结构和空间在立面上的整合表达 ©YHLAA
The X: 消失的梁----多专业协同达法规1.5倍抗震级别
为满足A级办公空间所要求的2.7米净高,结构设计采用无梁板系统:统一压扁梁高并嵌入管线,形成平整的室内天花。


△ 12—16层建筑结构透视剖面分析图 ©JJP
70厘米深的格子梁最大跨距达27米,搭配90颗TMD小型阻尼器,有效提升结构劲度、抑制长跨共振。在建筑、结构与机电的多专业协同下,整体系统达成法规1.5倍的抗震性能要求,实现空间弹性与结构安全的双重目标。

△ 格子梁系统和各专业整合平面及钢梁穿孔示意图 ©JJP
The V: 共享天空 ----环道与花园
14—16层通过“倒V”结构与内收幕墙,释放出绿覆率达50%的环形步道与空中花园,集感知舒缓、情绪调节与社交延展功能于一体,成为企业落实员工关怀与健康福祉的空间表达。

△ 环形步道 ©YHLAA

△ 空中花园 ©JJP
The Y:城市互动----从骑楼到口袋公园
骑楼作为兼具公共性与实用功能的建筑形态,被引入建筑底层沿街界面,发挥连接人群、遮挡风雨与延展城市活动边界的作用。

△ “骑楼—全开放入口大堂—口袋公园”空间序列 ©JJP
项目以“Y”型结构包裹挑高三层的骑楼空间,通过结构支撑与分散的律动变化,形成更开放、流通的公共界面,强化建筑与街道的互动关系。

△ 骑楼 ©YHLAA
穿过民权东路一侧的全开放大堂,行人可步入基地最深处的微型绿地。该空间借鉴美国城市规划中的“口袋公园”概念,以流瀑隔绝都市喧嚣,营造静谧宜人的城市绿境。

△ 口袋公园 ©YHLAA
From High-Tech to High-System
在对墙面绿化等可持续构造的继承中,设计团队进一步深化了后高技派的技术路径与协同方法,最终凝练成上海商业储蓄银行总行大楼独特的建筑表达。

△ 在后高技派时代建构可持续的金融建筑 ©JJP
设计图纸

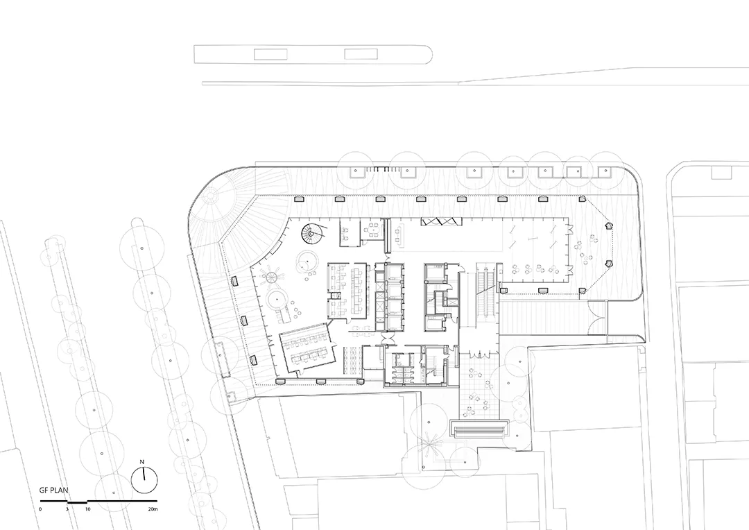
△ 首层平面图 ©JJP

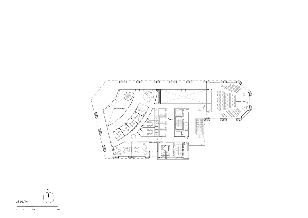
△ 二层平面图 ©JJP

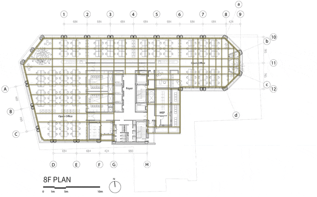
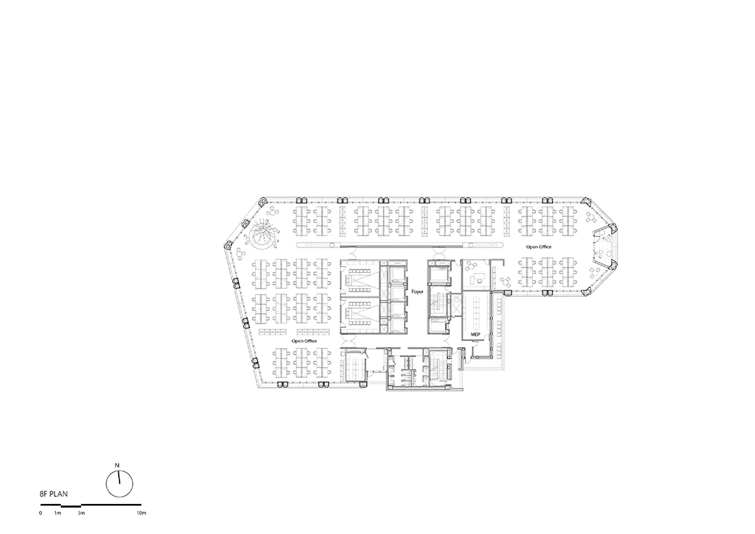
△ 八层平面图 ©JJP

△ 十四层平面图 ©JJP

△ 剖面图1 ©JJP

△ 剖面图2 ©JJP

△ “Y”形构造节点 ©JJP

△ “V”形构造节点 ©JJP

△ “X”形构造节点 ©JJP

△ “X”形构造节点横截面 ©JJP
