2025年9月,深圳河套学院迎来了首批新生。与此同时,一栋由高层办公楼改造而成的学生公寓,也悄然亮相。
你可能想象不到,就在几个月前,这里还是一栋标准的政府产权办公楼——常规的玻璃幕墙、标准化的办公隔间、笔直贯通的走廊。
而现在,它是全国唯三的AI学院的“学生之家”。
一场与时间的赛跑
“当年设计、当年改造、当年投用”——2025年2月24日到8月13日,从投标中标到竣工验收,共计6个月的时间。这是AUBE欧博设计接到的任务卡。
项目是对位于深港科技创新合作区的CFC长富中心2号楼进行改造。由AUBE欧博设计出品的CFC长富中心2号楼竣工于2014年,11年后,我们让它焕发新生,这也是AUBE欧博设计第一次对自己设计的项目进行再更新。
但要在极短时间内,把一栋高层办公塔楼变成舒适的学生公寓,还要保证住得爽、玩得开、学得进。
怎么破?
设计团队给出的答案是:不做简单的“格子间”,而是造一座“垂直社区”。

长富金茂大厦二号楼——深圳河套学院公寓 ©直角建筑摄影
把整栋楼“切”成四层蛋糕
走进这栋楼,你会发现它像一个分层蛋糕,每一层都有自己的使命:
一层(底料):生活配套——图书馆、便利店、餐饮,下楼就能解决
二层(夹心):社交主场——健身、娱乐、路演、心理咨询,整层都是学生的“社区客厅”
三至十七层(主体):私密卧室——609间宿舍,安心睡觉
顶层(topping):空中花园——五十米高空的“星空绿境”,发呆、吹风、看晚霞

公共空间体系
想象一下,你的宿舍生活是怎样的?走出卧室,不是狭窄的走廊,而是一个可以健身、路演、玩乐的“社区客厅”;乘电梯直达屋顶,五十米高空的空中花园是你专属的放松角落。
这就是深圳河套学院公寓的日常。面对仅有半年的改造工期,设计团队没有把办公楼简单“切”成格子间,而是玩了一场精彩的空间“魔法”。
这样的分层,让“居住+学习+社交+休闲”全部浓缩在一栋楼里。下楼是烟火气,上楼是静谧夜——这不就是年轻人理想中的“垂直村落”吗?
二楼的“快乐星球”:把社交还给生活
如果说宿舍是私密的壳,那二楼就是开放的核。
设计团队把整层二楼打造成一个“社区客厅”——没有枯燥的长走廊,健身房、娱乐室、路演空间像珍珠一样串联起来。

二层健身房:跑步也能看风景 ©直角建筑摄影
最妙的是,这里的家具全是可移动的。
今天想搞社团沙龙?把椅子围成一圈。明天乐队要排练?腾出空地就能开唱。周末办个小型路演?灯光一打,氛围感拉满。

二层娱乐间:桌游、电竞、闲聊,总有一款适合你 ©直角建筑摄影

二层路演空间:学生时代的第一个“舞台”©直角建筑摄影

二层路演空间:学生时代的第一个“舞台”©毛冬
宿舍里的“小心机”:再也不用抢厕所了
如果你住过宿舍,一定经历过早高峰的厕所大战。
这次,设计师放了个大招:三分离卫生间。
什么意思?洗漱、如厕、淋浴,三个功能完全独立分区。一个人洗澡,不妨碍另一个人上厕所,第三个人还能在外面刷牙。

户型模式分离卫生间

宿舍盥洗区 ©直角建筑摄影
这还不是全部。每个宿舍单元还配了一个公共客厅——
“晚上想串门?不用敲门进卧室,直接在客厅开聊。”
而卧室则保持独立,拉上门,就是自己的小世界。私密与社交,终于不用二选一了。

公共客厅 ©直角建筑摄影

宿舍客厅:同学们约饭聊天的据点 ©毛冬

宿舍卧室:拉上门就是自己的小世界 ©直角建筑摄影

宿舍卧室:拉上门就是自己的小世界 ©毛冬
每一层,都是一个邻里小社区
如果你以为标准层只有宿舍,那就错了。
设计团队在三至十七层的核心居住层,悄悄藏了一组“温暖彩蛋”——每层都设置了休憩讨论区、水吧台和移动外卖柜。
这意味着什么?
讨论小组要开会? 不用下二楼,出宿舍门走几步就是讨论区,小组作业、头脑风暴随时开聊。
半夜渴了饿了? 水吧台备着热水、咖啡,还能微波炉加热夜宵,不用穿着睡衣下楼买水。
这些小而暖的空间,把原本只有走廊和房门的标准层,变成了一个个有温度的“邻里小社区”。同层的同学在这里相遇、闲聊、互助,慢慢从“住在一层楼的人”变成“认识的人”,再变成“朋友”。


茶水间(示意图)
五十米高空的“秘密花园”

©直角建筑摄影
坐电梯到屋顶,画风突变。
在离地近百米的高空,设计师藏了一座静谧花园——“星空绿境”。
立体绿化、休闲平台、夜景灯光……这里成了整栋楼最治愈的角落。
傍晚,学生们可以抱着书本上来吹风;深夜,三五好友坐在这里,俯瞰深港的灯火。
在高密度的城市里,能有这样一处“云端发呆地”,是多少上班族羡慕不来的奢侈。
75天的“微创手术”
你可能好奇:办公楼改宿舍,那么大工程,半年真的够吗?
秘密在于“最小干预”。
立面几乎没动——保留原有玻璃幕墙,二层只微调了空调机位和窗洞口
阳台巧妙改造——通过保留构造柱、部分拆除隔墙、新增玻璃隔断,实现三户独立阳台,又尽量减少对外立面的影响。
施工全程“穿衣”——造时采用外立面围网防护,既保安全又不损坏原有门窗改。同步调整幕墙门窗体系,将部分窗保留框料,窗扇改门,满足中间户使用需求。
地面材质巧思——室内公共区域采用耐候性强、易于维护的环保材料:石塑地板,环保、耐用、美观、易安装、营造温馨明快的空间氛围,追求快速装修高性价比和个性化设计。

改造过程:一边施工,一边保护©直角建筑摄影
更硬核的是工作模式:设计、选材、采购、施工四线并行。图纸还在细化,材料已经下单;施工刚进场,设计师直接驻守在工地,每天和施工方、公务署、校方开“站会”,问题不过夜,进度不拖延。75天,核心改造完成。
在这个存量时代,建筑的生命可以再次绽放。这个项目对我们而言,不只是完成一次改造,更是用专业与协作,回应时代命题的一次探索:如何让旧建筑,快速、优雅地承载新梦想。
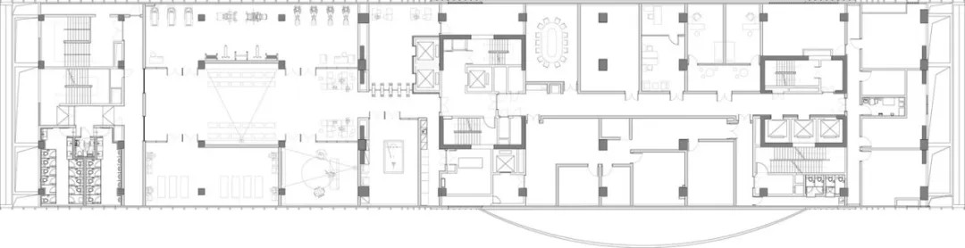
技术图纸

二层平面图

十层平面图
项目信息
项目地点: 广东省深圳市
客户:深圳市福田区建筑工务署
设计范围:建筑、室内、景观
主要功能:学生宿舍、公共活动、商业配套、图书馆、餐饮、健身、娱乐
总建筑面积:约23 000㎡(原办公面积19263㎡,商业面积4195㎡)
设计/竣工年份:2025/2025
AUBE欧博设计团队:
项目负责人:王龙、毛冬、王楚
建筑设计:毛冬、王楚、李伟康、张栋
室内设计:毛冬、王楚、李伟康、张栋、孙梓皓
景观设计:王楚、张栋
结构设计:何远明、何哲宇
机电设计:黄煜、许少良、凌亮、聂育华、胡海萍、陈伟鑫 、林涛