椿鲤民宿项目位于上海市郊新场古镇附近。初次到达基地,
周边大片连绵的水稻田令人心旷神怡。稻田的辽阔与自然
气息便成为设计的灵感来源,奠定了项目与自然共生的基
调。
有别于品牌民宿的诸多既定限制,椿鲤民宿的业主更希望
将自由度给到设计师。初次沟通时,业主仅口述了他的基
本诉求:在满足房间数量和公共区域功能的同时,充分利
用户外及屋顶露台的空间。


原建筑为两栋独立的农民自建房,其形态与内部空间均无
法满足现代民宿的功能需求。我们希望在保留原有结构的
基础上,尽量避免大刀阔斧的改动,而是就势而为去打造
一个包含11间客房及宴会厅、棋牌室等复合功能的民宿。
同时,正是这样一个自然而然、“不强求”的稻田民宿,
相应的方案也需具备充分的灵活性,以应对旧改项目中常
见的报建及施工不确定因素,力求在现实条件与理想愿景
之间取得平衡。
设计以“守望”为精神内核,强调建
筑与周边稻田景观的关系。

守望者,与自然串联
在成本可控的前提下,设计尽可能多地保留了原建筑结构,
包括入口处的木结构双坡屋顶平房。同时,通过串联、对
景以及室内外空间的交错,使建筑成为自然环境中的一部
分,让这栋建筑像稻田中的“守望者”一样,独具一格却
又让人安心。

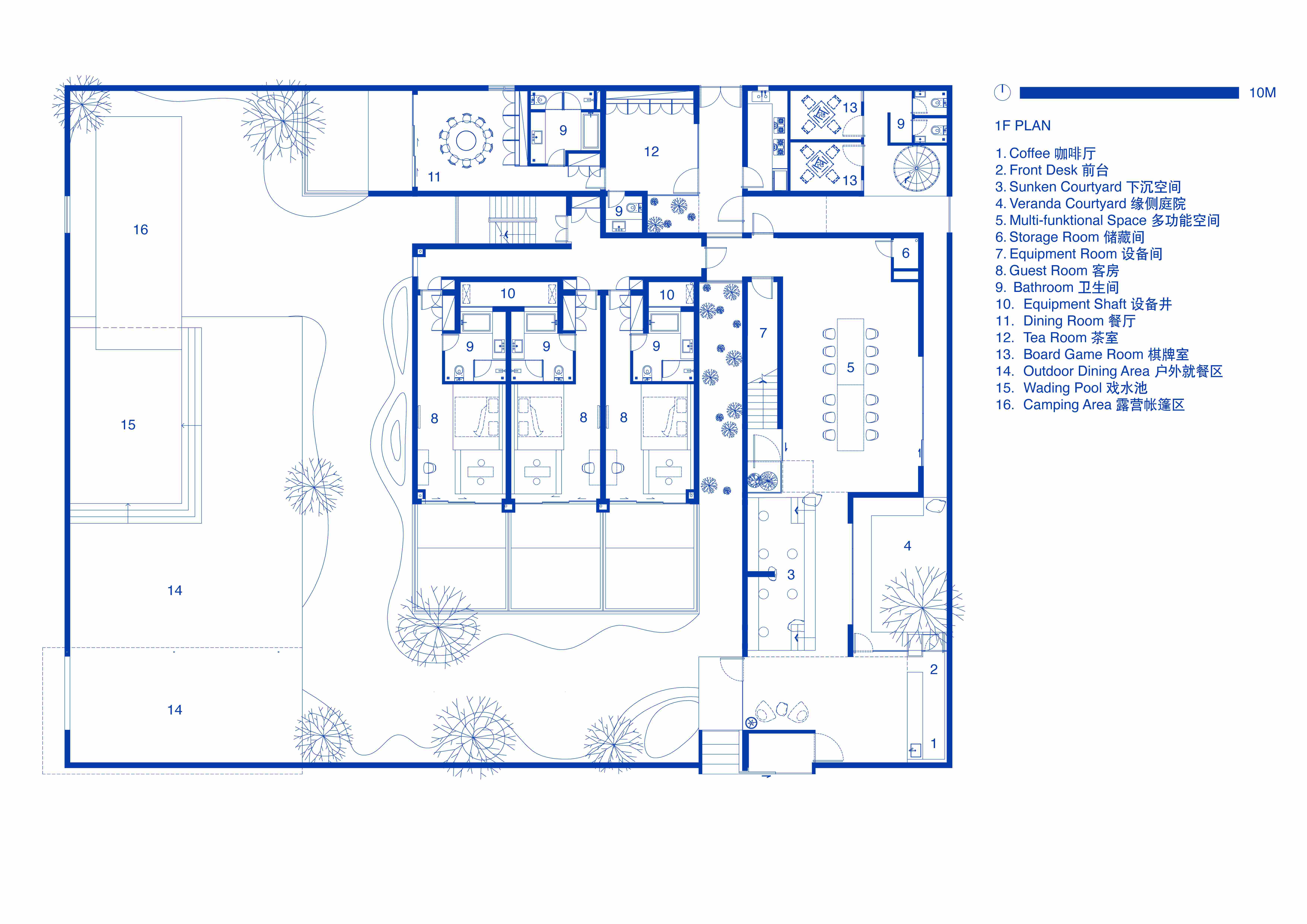
首先,利用围墙将两栋建筑及院落整合为统一的场域;继而,在长方形场地的三个角落植入了三个建筑体量作为“连接件”,
分别承载大堂、凉亭、宴会厅等公共功能。这一策略不仅梳理了公共与私密区域的逻辑关系,也有效的串联起了室内与室
外的空间。
同时,顺应原有地势,在大堂中设置了下沉卡座区,既与小院形成了独特的视线对景,也为室内引入了自然光与庭院景观,
从而丰富了半户外空间的层次。
设计以动线作为组织各空间
的核心,让游走于其中本身变
成一件有趣的事。


新与旧,保留与介入的平衡
在改造中,设计师审慎处理新旧关系。例如入口处的双坡
老屋,尽管在风格上与其他新建体量略有差异,但最终未
做过多的改动,仅出于安全考虑将原有屋面更换为铝镁锰
板。
新增部分亦秉持“每一处介入皆有缘由”的原则。如客房
泡池区窗外的造景,它并非仅为营造意境的装饰,更是为
了巧妙包裹沿墙布置且不甚美观的管线,体现了设计对真
实性与整体性的追求。


与大多数旧建筑改造项目一样,椿鲤民宿也面临严控成本
与适配当地施工水平的挑战。通过采用固定家具系统,整
合解决了客房内的多种功能需求,同时有效降低了总体成
本。同时,在设计过程中,充分考虑了在地施工工艺水平,
尽量简化施工节点,选用易于实施且耐久的材料与构造方
式,确保设计理念的高完成度落地。










结语
“守望者”是间筑设计对自然、记忆与场所精神的一次回
应。我们期望这栋建筑在满足功能需求之外,更能成为连
接人与土地、过去与未来的媒介,守护水土与时光。
项目信息
功能:民宿、咖啡厅
设计时间:2023.05 - 2024.04
施工时间:2024.02 - 2024.08
地点:上海 浦东
建筑面积:897平方米
景观面积:773平方米
运营方:春鲤民宿
设计公司:间筑设计
设计团队:肖磊,邓兆静、邓彩仪、滋埜悠司、沈瑞杰
定制家具设计:间筑设计
合作方:N/A
类型:建筑、室内及景观
状态:建成
摄影师:胡斯远